Cutting Down a Protected Bike Lane on Portola: An Improvement for Whom?
A section of the post-separated bike lanes on Portola Drive was removed last week and replaced with a design which the SF Municipal Transportation Agency says should be safer and easier for people on bikes to navigate. But at least one commuter who uses the lanes said the change is anything but safe.
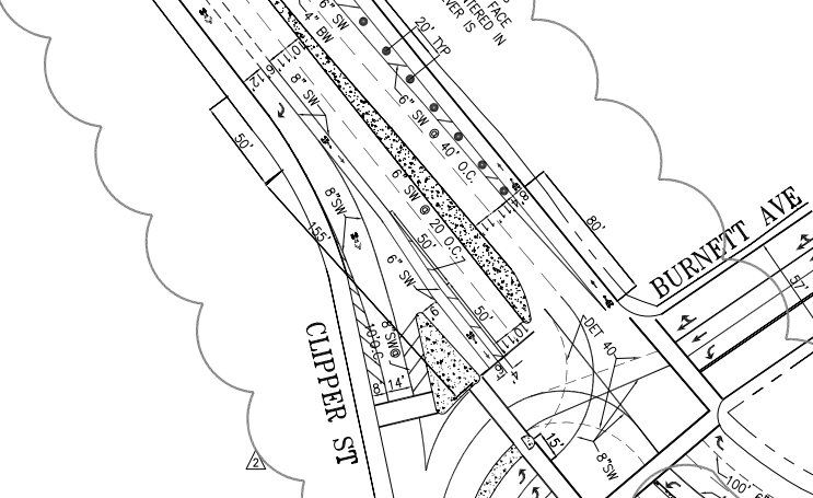
The section of bike lane in question, which runs eastbound Portola from Glenview Drive approaching Burnett Avenue and Clipper Street, transitions from a wide bike lane separated by soft-hit posts to a narrow, dashed bike lane squeezed between a traffic lane on the left and a right-turn lane on the right. The argument typically made for such a configuration is that it eliminates the possibility of a “right-hook” at intersections, in which a driver makes a right turn in front of a bicyclist without seeing her. At this intersection on Portola, the right-turn lane leads to a “slip” lane, which allows motor traffic to make the right turn onto Clipper without stopping. That apparently prevents the bike lane from continuing along the curb, forcing it to shift to the left side of the slip lane. It’s also worth noting that there is a bus stop for the 48 and 52 Muni lines along the slip lane.
Last Friday, the SFMTA removed some soft-hit posts and more than doubled the length of the dashed section to “allow bicycles to merge into the bicycle lane to the left of the right turn pocket at the point of highest speed” and “simplify and improve the merging movements approaching Diamond Heights Blvd.,” said SFMTA spokesperson Paul Rose. “We routinely do observations after implementing, and sometimes find that field adjustments are necessary,” he said.
But very few people feel safe riding in a narrow dashed lane, uphill, sandwiched between moving motor vehicles. And planners in other cities have engineered protected bike lanes that minimize right-turn collisions by slowing turning drivers down and making bicyclists visible to them, or by using bicycle traffic signals to create separate phases for cyclists and turning drivers.
On Portola Drive and Laguna Honda Boulevard, which connects to neighborhoods north, the physical separation provided along much of the bike lanes was intended to make the streets more comfortable for less-intrepid bicyclists to use. That follows the intent of the city’s official goal to reach 20 percent bicycle mode share by 2020. But those streets are also pocked with areas where riders must suddenly merge into dashed lanes, or share lanes with high-speed car traffic, which detracts from the feeling of protection afforded by the separated lanes. Those areas are huge missed opportunities to provide high-quality, broadly accessible bicycling connections for the neighborhoods south and west of Twin Peaks.
Last week’s design change on Portola approaching Burnett only appeared to make the situation worse. Previously, the 4-foot dashed bike lane was 300 feet long, according to the SFMTA’s design illustrations [PDF]. Now, it’s 612 feet long [PDF]. It could only be called an improvement if the goal is to design streets for the small segment of bicyclists with an appetite for risk who don’t mind merging with car traffic while zooming down Portola. It doesn’t make sense for the far larger population of more risk-averse cyclists and families, who might use the street were a continuous protected bike lane provided.
“I think the new design is the complete opposite of what an ‘8 to 80’ bike facility should look like,” said Mike, 32, a bike commuter who uses Portola. “Cyclists must traverse a narrow 4-foot dashed bike lane with speeding traffic on their left and merging drivers on their right.” At least in the previous design, he said, bicyclists “could time their merge with the red stop light at the intersection ahead. Automobile traffic would either be stopped or moving slowly.”
“So cyclists are given less space and faster moving traffic. The new design benefits automobile traffic, not bikes,” Mike added. “Just how is that a good idea?”
There are examples of similar streets with protected bike lanes that don’t force bicycle riders to merge with auto traffic. When I studied for a semester in Aarhus, Denmark, a city where 20 percent of trips are made by bike, I bike commuted on a major road called Randersvej. Randersvej carries fairly heavy motor traffic and has a speed limit nearly the same as Portola’s, which is 35 MPH. The raised bike lanes on that road continue straight up to the crosswalk, with painted markings that warn turning drivers to watch for bicyclists and help guide bicyclists through the intersection. Some intersections have bicycle signal phases, and some don’t, but right turn collisions are not known to be a regular problem on the road (I wasn’t able to come by any crash data).
The right-turn “slip” lane at Portola and Clipper presents a somewhat different challenge than what is found on Randersvej, but safer engineering solutions are clearly out there. It could be that the slip-lane on Portola needs to be removed.
Kit Hodge, deputy director of the SF Bike Coalition, said the organization is open to ideas on fixing the Portola design. “We’d love to hear more feedback from people about this design. We hear from a lot of people time and time again that on high speed streets like Portola that they want more separation from motor vehicles,” said Hodge. “We’d love to work with the MTA and people who live near and ride on Portola on how to make this street a truly safe and comfortable bikeway for everyone.”
Read More:
Streetsblog has migrated to a new comment system. New commenters can register directly in the comments section of any article. Returning commenters: your previous comments and display name have been preserved, but you'll need to reclaim your account by clicking "Forgot your password?" on the sign-in form, entering your email, and following the verification link to set a new password — this is required because passwords could not be carried over during the migration. For questions, contact tips@streetsblog.org.




